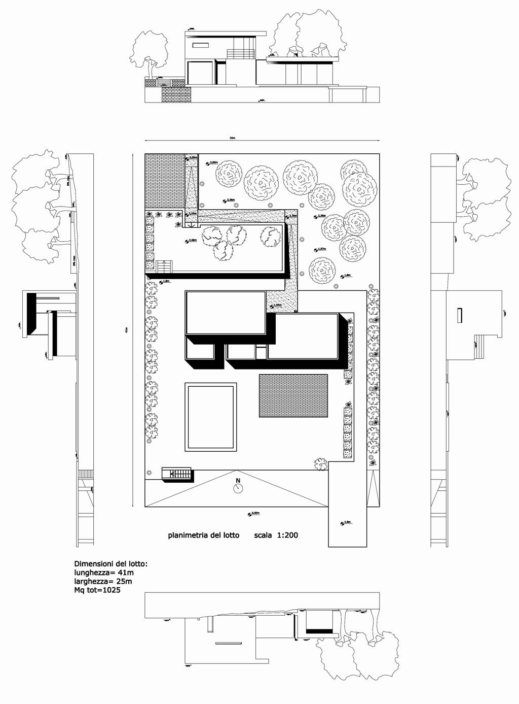
Laboratorio progettuale 2006-07

MENZIONE SPECIALE
PER LA QUALITÀ DELLA SOLUZIONE COMPOSITIVA

Luca Gherardini

tutor: ing. Ernesta Tecce

close